Kendi Karavanını Yapanlar; İveco 15.6 (Aka)

  • Konuyu Başlatan: Konuyu başlatan Aka Tarih:
  • Başlangıç tarihi Yazılan Cevaplar:
  • Cevaplar 1,025
  • Okunma Sayısı: Görüntüleme 245,207
Ynt: Kendi Karavanını Yapanlar; İveco 15.6 (Aka)

Rıfat depoyu bir ( deli ) arkadaşa yaptırdım, depon hazır al tak dedi, ya akıtırsa dedim aracın altına giricenmi, " yaw zaten komple yekpare yaptım, kaynaklı yerlerdede yarım santim sarı kaynak var, hem bu atık su değilmi zaten, döke saça eksilterek gidersin işte ne var," dedi.
Ama yerinde denedim iyi gibi, fakat baya sesli doluyor.
 

Etiketler
Ynt: Kendi Karavanını Yapanlar; İveco 15.6 (Aka)

Arkadaşlar nihayet son parçamıda kestim, akü dolap kapağı, ilk parçam şoför arkası oturma gurubunun sağ yanı idi ve nihayet ağaç işim bitti, şuan hanım temizlik ve perdelerin derdinde, herhalde yarın serin diyarlara doğru yola çıkarım. Eksikler var tabiki, üst dolap kapaklarının kilitleri hala yok, wc kapısını sanırım çiviyle tutturucam, tavana kumaş çekilmedi, ama gidilecek gibi oldu. bu saydıklarımı gittiğim yerlerden tedarik etme niyetindeyim.

Bu arada bu aracı yaparken faydalandığım tüm başlık sahiplerine, forum kurucusuna, başlığıma beni eleştirir yada över tüm yazanlara gönülden teşekkür ediyorum.

Fotolar daha sonra, " hava karardı "

DSCN1171c.jpg
 

Ynt: Kendi Karavanını Yapanlar; İveco 15.6 (Aka)

Aka' Alıntı:
herhalde yarın serin diyarlara doğru yola çıkarım.

Bu arada bu aracı yaparken faydalandığım tüm başlık sahiplerine, forum kurucusuna, başlığıma beni eleştirir yada över tüm yazanlara gönülden teşekkür ediyorum.

Fotolar daha sonra, " hava karardı "

İyi yolculuk, güzel gezi ve dinlenceler sizden yana olsun. :smiley:

Kadirbilir olmak, erdemli insanın özelliğidir...

Gezi fotoğraflarını da ihmal etmezssiniz umarım.

Cavid Sezen
 

Ynt: Kendi Karavanını Yapanlar; İveco 15.6 (Aka)

Güzel gezilere az kaldı desene hadi hayırlısı doya doya sindire sindire tatiller dileriz.
 




Ynt: Kendi Karavanını Yapanlar; İveco 15.6 (Aka)

Aka' Alıntı:
herhalde yarın serin diyarlara doğru yola çıkarım.

Güleeee güleee sanaaaaaa, yoluuuun açık olsuuuun.
Güleeee güleee sanaaaaaa, seni Tanrım korusuuuuuun.

Hadi bakalım dinozorlor el kaldırsın: Bu şarkıyı kaç kişi hatırlıyor? :D
 

Ynt: Kendi Karavanını Yapanlar; İveco 15.6 (Aka)

Selçuk Ural sanırım bende dinazorum..! Bekir hocam.


Kemal bey özgün tasarımlarla dolu aracınızda kapı kilidini eksik diyorsanız kendinize haksızlık yapmışsınız. Keyifle dolu
güzel gezi ve anılarla dönmenizi bekliyor olacağız.

Selamlar.
 



Ynt: Kendi Karavanını Yapanlar; İveco 15.6 (Aka)

Sn. Aka tebrik ederim çok güzel bir çalışma olmuş. Kazasız belasız mutlulular içinde tatiller dilerim.
 



Ynt: Kendi Karavanını Yapanlar; İveco 15.6 (Aka)

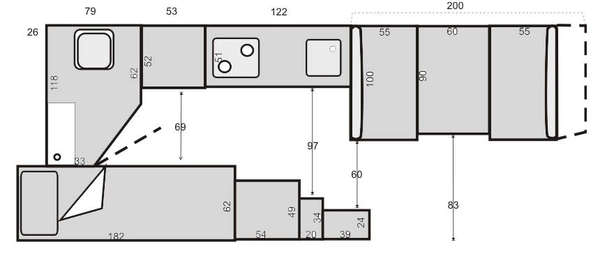
Biraz anlatım özürlü olduğumdan aracımın son halinin planını şimdi yayınlıyorum, çünki ilk plandan biraz değişiklik yaptık. tekerlek davlumbazlarının biri yatak bazası içinde diğeri mutfak çekmeceleri altında.

son şekil.jpg
 

Ynt: Kendi Karavanını Yapanlar; İveco 15.6 (Aka)

Kemal bey merhaba,

Porti poti'yi dıştan kasetli şeklinde modifiye etmiştiniz, boşalta konusunda pratiklik sağladımı? selamlar.
 

Ynt: Kendi Karavanını Yapanlar; İveco 15.6 (Aka)

Bu arada son gezi notlarımdan bazı olmazsa olmazlar şöyle.
-Fazladan 5-6 tane bagaj bağlama lastiği ( renkli ve iki ucunda kancası olanlardan )
- Araç içinde muhtelif uygun yerlerde göze batmayacak sabitleme halkaları ( extradan su, kasa, çuval vs ) gibi geçici yükleri sabitlemek amaçlı.
- 2 adet lastik yükselti takozu, 2 adet çünki gerektiğinde önlere yada arkalara yada sağ veya sol taraflara koymek için, forumun bir yerinde görmüş ama önemsememiştim, gördüğüm takozlar katlanarak yüksekliği ayarlanıyordu, basit ama çok gerekli,
- Normal boy bir kova, araca girarken ayak daldırmak için.
-Tamir bandı,
-Çamaşır nasıl kurutulacak sorusunun cevabı.
-Ledli uzun süreli el feneri.
-bolca poşet irili ufaklı, çöp paketlemek için, yada çöp torbaları.
- araç içi terliği. önemsiz gibi görünsede önemli.
- wc kapısı çıkışına ve araç girişine muhakkak havlu tip paspas.
- ve en önemlisi wc nin koku yapmaması için gerekli kimyasalların bulundurulması.
benim wc kapaklı olduğu halde kullanım için kısa sürelide olsa açıldığında bazı durumlarda araç içine koku yayılabiliyor, bu yüzden arkadaşlar beni eleştirselerde, contalı kapaklı sızdırmaz olan wc ler haricinde kullanılanları, seramik wc ler, yahutta wc nin atık suyuna karışması ( tek depo ) kesinlikle tavsiye etmiyorum, ben atık suyumu heryerde rahatlıkla boşaltabildim, çünki sadece sabun kokusu geliyordu ama diğerini düşünün ( bazı anlarda boşaltacak yer dahi bulunamıyor, yaşayınca anlaşılıyor ), ayrıca ben duragan ( yerleşik ) tatil yapmadım sadece geceleri uzun süreli durduk, yol alırken deponun çalkalanması sonucu lavabo ve banyomdan fena sayılmayacak sabun kokusu geliyordu, tersini siz düşünün.
şimdilik akla gelenler bunlar.
 

Ynt: Kendi Karavanını Yapanlar; İveco 15.6 (Aka)

güngör' Alıntı:
Kemal bey merhaba,

Porti poti'yi dıştan kasetli şeklinde modifiye etmiştiniz, boşalta konusunda pratiklik sağladımı? selamlar.

Evet hemde çok, karadeniz gezisi sırasında durduğum petrollerde kendi wc lerine, diğer durumlardada akarsu kenarlarına, fakat bu kenarlara araç ile girmek mümkün değil tabiki.
 

Ynt: Kendi Karavanını Yapanlar; İveco 15.6 (Aka)

Aka' Alıntı:
Bu arada son gezi notlarımdan bazı olmazsa olmazlar şöyle.
-Fazladan 5-6 tane bagaj bağlama lastiği ( renkli ve iki ucunda kancası olanlardan )
- Araç içinde muhtelif uygun yerlerde göze batmayacak sabitleme halkaları ( extradan su, kasa, çuval vs ) gibi geçici yükleri sabitlemek amaçlı.
- 2 adet lastik yükselti takozu, 2 adet çünki gerektiğinde önlere yada arkalara yada sağ veya sol taraflara koymek için, forumun bir yerinde görmüş ama önemsememiştim, gördüğüm takozlar katlanarak yüksekliği ayarlanıyordu, basit ama çok gerekli,
- Normal boy bir kova, araca girarken ayak daldırmak için.
-Tamir bandı,
-Çamaşır nasıl kurutulacak sorusunun cevabı.
-Ledli uzun süreli el feneri.
-bolca poşet irili ufaklı, çöp paketlemek için, yada çöp torbaları.
- araç içi terliği. önemsiz gibi görünsede önemli.
- wc kapısı çıkışına ve araç girişine muhakkak havlu tip paspas.
- ve en önemlisi wc nin koku yapmaması için gerekli kimyasalların bulundurulması.
benim wc kapaklı olduğu halde kullanım için kısa sürelide olsa açıldığında bazı durumlarda araç içine koku yayılabiliyor, bu yüzden arkadaşlar beni eleştirselerde, contalı kapaklı sızdırmaz olan wc ler haricinde kullanılanları, seramik wc ler, yahutta wc nin atık suyuna karışması ( tek depo ) kesinlikle tavsiye etmiyorum, ben atık suyumu heryerde rahatlıkla boşaltabildim, çünki sadece sabun kokusu geliyordu ama diğerini düşünün ( bazı anlarda boşaltacak yer dahi bulunamıyor, yaşayınca anlaşılıyor ), ayrıca ben duragan ( yerleşik ) tatil yapmadım sadece geceleri uzun süreli durduk, yol alırken deponun çalkalanması sonucu lavabo ve banyomdan fena sayılmayacak sabun kokusu geliyordu, tersini siz düşünün.
şimdilik akla gelenler bunlar.

Deneyimlerinizin sonuçlarını paylaşmanız nedeniyle teşekkür ederim. :smiley:

Cavid Sezen
 



Ynt: Kendi Karavanını Yapanlar; İveco 15.6 (Aka)

Cavit bey, ben gördüğüm doğrularımı yazdım, hani damdan düşen adam demişya " bana doktor değil damdan düşmüş birini bulun " diye, benimkide o hesap, bu kadar gezinin ardından yavaş yavaş damdan düşmüş biri olmuşumdur gibi geliyor.
 

Gezenbilir bilgi kaynağını daha iyi bir dizin haline getirebilmek için birkaç rica;
- Arandığında bilgiye kolay ulaşabilmek için farklı bir çok konuyu tek bir başlık altında tartışmak yerine veya konu başlığıyla alakalı olmayan sorularınızla ilgili yeni konu başlıkları açınız.
- Yeni bir konu açarken başlığın konu içeriğiyle ilgili açık ve net bilgi vermesine dikkat ediniz. "Acil Yardım", "Lütfen Bakar mısınız" gibi konu içeriğiyle ilgili bilgi vermeyen başlıklar geç cevap almanıza neden olacağı gibi bilgiye ulaşmayı da zorlaştıracaktır.
- Sorularınızı ve cevaplarınızı, kısaca bildiklerinizi özel mesajla değil tüm forumla paylaşınız. Bildiklerinizi özel mesajla paylaşmak forum genelinde paylaşımda bulunan diğer üyelere haksızlık olduğu gibi forum kültürünün kolektif yapısına da aykırıdır.
- Sadece video veya blog bağlantısı verilerek açılan konuların can sıkıcı olduğunu ve üyeler tarafından hoş karşılanmadığını belirtelim. Lütfen paylaştığınız video veya blogun bağlantısının altına kısa da olsa konu başlığıyla alakalı bilgiler veriniz.

Hep birlikte keyifli forumlar dileriz.


GEZENBİLİR TV

GEZENBİLİR'İ TAKİP EDİN

Forum istatistikleri

Konular
104,162
Mesajlar
1,529,515
Kayıtlı Üye Sayımız
166,886
Kaydolan Son Üyemiz
tt12345

Çevrimiçi üyeler

Şu anda çevrimiçi üye yok.

SON KONULAR



Geri
Üst