Karavanımızın Imalatına Başladık

  • Konuyu Başlatan: Konuyu başlatan lucias Tarih:
  • Başlangıç tarihi Yazılan Cevaplar:
  • Cevaplar 41
  • Okunma Sayısı: Görüntüleme 13,875

lucias

Gerçekçi ol, imkansızı iste...
Mesajlar
117
Tepkime Puanı
33
Yer
Mersin-Taşucu
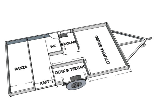
Uzun yıllardır hayalini kurduğum karavan dünyasına nihayet, kendi yapımımız bir çekme karavanla adım atmış bulunuyoruz. Yaklaşık 2 aylık bilgisayarda proje çalışmalarını tamamlayıp imalat aşamasına geçmiş bulunuyoruz. Proje bilgilerine gelince;
  1. Yaşam alanı; 3.75x2.00 m ebatlarında
  2. Tavan yüksekliği 1.95 m
  3. 4 kişilik
  4. 750 kg altı
  5. Alt şase 60x40x3 mm kutu profil, üst yapı 30x30x2 mm kutu profil
  6. İzolasyon 28 dn. xps köpük
  7. Al-Ko torsiyonlu frensiz dingil
  8. Al-Ko kaplin
  9. Winterhoff destek tekeri
Hafta içi çalıştığımızdan imalat sadece hafta sonları devam edecek. Yorumlarınıza ve devam eden imalat çalışmasında yardımlarınıza başvuracağım. Herkese iyi günler dilerim.

IMG_8142.PNG


IMG_E8137.JPG


IMG_E8138.JPG


IMG_E8139.JPG


IMG_E8140.JPG


IMG_8153.JPG
 

Etiketler
karavan


Karavanınız frensiz bir karavan olmak için çok ağır. Karavanı frenli yapmanızı tavsiye ederim.

Öncelikle öneriniz için teşekkür ederim lakin işler göründüğü gibi değil. Kaç aydır tasarımla beraber ağırlık hesabı yaptık 750 kg’ın altında kalmak için. Yarın ofise geçince metraj ve ağırlık tablosunun da resimlerini koyarım .


Tapatalk kullanarak iPhone aracılığıyla gönderildi
 

Karavanınız frensiz bir karavan olmak için çok ağır. Karavanı frenli yapmanızı tavsiye ederim.
-------------------------------------------------------

Kolay gelsin.
Projelendirmek bu işin en basit adımı .....
Yolun başındayken frenli aksa dönmenizi öneririm.

1- 350 Kg. üstü ağırlıklar frensiz kullanım için büyük tehlikedir.
Bu konuda çok usta bir şöför, mesela Yugün v.b. bunları dikkatle kullanabilir.
Karavan kullanmak, özellikle 700 Kg.vb. frensiz ağır ! karavan kullanmak çok tecrübe ister.
Düz yolda, problemsiz trafikte kullanmak kolay.
Önemli olan zor şartlarda bu karavanı nasıl zaptedeceksiniz..!
Kataloklardaki safsata değerlere bakmayın, kullanan tecrübesini dinleyin, zarar değil, fayda görürsünüz.

2- Bu karavana, kullanım ağırlığı olarak 80-150 Kg arası kullanım yükü koyacaksınız, bunu da unutmayın !

Hevesler, bütçe imkanları başka, tecrübe ve gerçekler başkadır.
Dikkatli olmanızı öneririm.

Yük. Müh. Akın KIR
 
Son düzenleme:




Tüm yorumlar için teşekkürler. Bu karavanın tasarımını yaparken, ağırlık dağılımı fen kurallarını uygun şekilde dizayn ettik. Tabi ki sürüş konforu açısında frenli dingil tercih sebebi olabilir ama birde işin muhasebe bölümü var ki malumunuz üzeri her şey ateş pahası. İşte tam da bu noktada mühendislik işin içine giriyor, mühendis bir işi ucuz, kaliteli ve herşeyden önemlisi sağlam şekilde tasarlayan kişidir. Her zaman işin teknik emniyet tarafında kalacağız diye gereksiz harcamalardan da kaçınmalıyız. Yoksa yaşadığımız mekanlarda mimari tasarımdan eser kalmaz sadece çimento ve demir yığını olur. Birde işin şöyle bir tarafı var bu karavanı çekeceğiniz aracın kapasitesi. Ben bu karavanı 2.0 cc motor, 150 Hp'lik SSangYong Korando Sports pick-up aracımla çekeceğim, aracımda ABS, ESP, 4 tekerde disk fren vs. güvenlik donanımları mevcut, aracıma taktırmış olduğum çeki demiri E belgeli ve ruhsata işli, ruhsatta ve üreticinin beyan föyünde 750 kg frensiz, 2300 kg frenli römork çekebileceğim belirtiliyor. Karavana çakacağımız vidadan, kablosuna kadar tüm ağırlık hesaplarını yaptık umarım işin sonunda bi sürprizle karşılaşıp 750 kg kotasını aşmayız, aşarsam da sorun yok, zira aracım pick-up olduğundan temiz su deposunu, yaşam aküsünü, tüpü aracımın bagajına alabilirim. Zaten bu riski göze alıp araç için bagajda altyapı oluşturuyorum. Saygılar sunar, iyi günler dilerim.


Yük. Müh. Mehmet AYDOĞDU
 

Bu arada öncelikle belirteyim, karavan imalatına başlamadan önce kesim şablonu oluşturduk, bu şekilde profil zayiatının önüne geçmiş olduk, sonrasında da sanayide bir tornacıya bu şablonu verip profilleri kestirdik, üzerilerine uzunluklarını yazdık. Üretime başladığımızda şase, ön taraf, arka taraf, üst taraf olmak üzere projesinde harf kodu verdiğimiz profilleri ayırarak işe başlamış olduk.

WhatsApp Image 2020-06-25 at 13.50.25.jpeg
 


Dün bahsetmiş olduğum ağırlık tablosu, az önce bahsetmiş olduğum kesim şablonu, şase tasarımı ve profil harf kodlama çalışmasının görselleri;

WhatsApp Image 2020-06-25 at 13.58.39.jpeg


WhatsApp Image 2020-06-25 at 14.00.24 (1).jpeg


WhatsApp Image 2020-06-25 at 14.00.24.jpeg


WhatsApp Image 2020-06-25 at 14.00.25.jpeg
 



yüksek mühendislik bilginize saygım sonsuz, aracınızın da çok güçlü, sağlam ve güvenli olduğuna şüphem yok. ancak konu çekici araç değil arkasına bağlanacak el yapımı karavan. Allah korusun siz yolda giderken araçtan ayrılmaya karar verirse sonrasında olabilecekleri düşünerek yazmıştım. durum yola çıkan herkesi ilgilendiriyor, benim ya da bir başkasının önünde veya yanında böyle bir şey yaşanırsa diye.... neyse size kolay gelsin. inşallah sonuç planladığınız gibi olur biz de kutu profilden yapılma, yüklü ağırlığı 750 kg dan hafif, frensiz olsa da emniyetli, mühendis işi, ucuz, kaliteli ve her şeyden önemlisi sağlam şekilde tasarlanmış bir çekme karavan üretilebileceğini görmüş oluruz. kolay gelsin, selamlar...

Sade Vatandaş Sinan
 


----------------------------------------------

En güzel cevabı siz vermişsiniz Sade Vatandaş Sinan Bey, tebrik ederim.
Burada mühendislik bilgilerini ve kariyerini yarıştırmak için bulunmuyoruz.

Burası çekme karavan ile ilgili, bilgi ve tecrübe paylaşım yeri.


Öncelikle şunu belirteyim; burada herhangi bir ünvan veya başka bir emtia ile ilgili polemik yaşamak için paylaşımda bulunmuyorum. Bu ünvan&kariyer olayını ilk mesajınızda siz başlattınız bilmiyorum farkındamısınız (Yorumunuzun altına ünvan koyarak). Çok şükür bunca yıllık meslek hayatımda kimse bana gelmedi senin hazırladığın yapının altında kaldık diye. Neyse bunları geçelim. Burası elbette karavan ile ilgili paylaşım yeri ben size burada kuvvet, moment, statik anlatmıyorum. Bu işin amatörce de yapılabileceğini anlatmak için paylaşımda bulunuyorum. Bu arada merak ediyorum sizlerin karavanınız hangi marka? Kaç yılında üretildi? Hangi malzemeden mamul? (Hani beni kutu profil kullandığım için eleştiren Sinan bey için özellikle soruyorum) . Sonuçta bu karavanlar el yapımı diyip geçebilirsiniz ama güvenlik konusunda özellikle ailem, trafikte seyir halinde olan diğer vatandaşlar söz konusu olduğu için emin olun sizden daha çok ben evhamlanıyorum. Asıl sorun ne biliyormusunuz? En kötü senaryoda Trafikte benim yapacağım çekme karavandan ziyade (Yılda ancak 5 - 10 defa yola çıkaracağım düşünülürse) hiçbir şekilde projesi olmadan gelişigüzel yapılmış römorklar ya da yıllarca deniz kenarında yatmış Avrupa (!) imalatı karavanlar daha tehlikeli değil mi sizce? Neyse bu konuyu daha uzatmak istemiyorum. Demirden korkumuz varsa bir zahmet trene binmeyelim ne de olsa o da el yapımı.


Tapatalk kullanarak iPhone aracılığıyla gönderildi
 

mesajınızın bir kısmı bana hitap ettiği için izninizle cevap hakkımı kullanayım. öncesinde de bir kaç şey söylemek isterim.

değerli @lucias , siz yaptığınız işi paylaşmak için bir başlık açtınız. doğal olarak görenler konu ile ilgili yazacaklar, zaten başlık açma amacı görüş almak değil midir? eleştiriye tahammülünüz yoksa neden böyle bir yol izlediniz? size hitaben hakaret, küfür vb. bir şey yazılmadığı halde sanki biraz gücenmiş gibisiniz.
daha önce pek çok farklı imalat yapmış olabilirsiniz, bu işi de planladığınız gibi bitireceğinize şüphe yok. ama işi planlamak başka, planlandığı gibi yapmak başka birşey. muhtemelen ilk defa bu tarz bir imalat yapacaksınız. izlediğiniz yol bunu gösteriyor.
karavanımı merak etmişsiniz, şu an uzun süreli kamp yapamadığım için karavan değil kamp aracı kullanıyorum ( vw t5 ) daha önce iveco daily panelvandan motokaravan yaptım, onun öncesinde de kontrplak üzeri fiber kaplama şeklinde kendi teknemi imal etim (8 ay daimi içinde yaşadım)


inşallah projenin sonunda kantar fişini ve gittiğiniz yerlerden güzel fotoğraflar paylaşır beni utandırırsınız .... selamlar....
 

Normal sikletteki araçların frensiz romork çekme kapasiteleri 450kg civarında. Burada hiçbir normal araçla kanunen çekilemeyecek bir şey üreteceksiniz. Satmak istediğinizde kimse bu karavanı almaz.
İkinci noktada 10 yıldır karavanı olan ve karavan süren birisi olarak sizi uyardık. Bunun yağmuru var çamuru var. Islak koşullarda frensiz 750 kg bir karavan zor duracaktır. Uyarması bizden, canınızı buna emanet edecek olan sizsiniz birinci planda.
Üçüncü olarak da bugün karavan üreten firmaların birkaç istisna dışında 750kg altı karavanları frenli. Herhalde bu kadar firmada da mühendisler çalışıyordur.
Ben uyarılarımı açık ve net yaptım. Bizim görevimiz uyarmak. Polemiğe girecek halimiz yok. Ancak bu sitedeki insanların belirli bir karavan deneyimi olan insanlar olduğunu bilmelisiniz.
 



.
Avrupa’da daha büyük karavanlarda bile sandviç panellerin metal iskeletle desteklenmesi gereksiz ağırlık olarak görülmekte.
Çünkü bu paneller kendilerini kolaylıkla taşıyabilmekteler.
Prensipte yollarda zaten içinde olmayacağımız karavanın duvarlarına sadece aluminyum köşebentle çerçeve vermek ve panelleri buraya yapıştırmak, kolay, ucuz ve yeterli bir çözüm kabul edilmekte.

Üstelik fazladan banyo, mutfak, yatak ve dolap duvarları ile birleşen dış duvarlar sonuçta gerekli stabiliteye böylelikle rahatlıkla ulaşabilmekteler...
Hatta bu linkte stabilite için iç duvarları bile kullanmayan bir örneği görebilirsiniz.

Özellikle 750kg’ı limit alanların dikkatini çekmek istemiştim. :yum:

791579C1-0133-4F03-AE90-5ADFCFED6D07.jpeg

.
 
Son düzenleme:

Gezenbilir bilgi kaynağını daha iyi bir dizin haline getirebilmek için birkaç rica;
- Arandığında bilgiye kolay ulaşabilmek için farklı bir çok konuyu tek bir başlık altında tartışmak yerine veya konu başlığıyla alakalı olmayan sorularınızla ilgili yeni konu başlıkları açınız.
- Yeni bir konu açarken başlığın konu içeriğiyle ilgili açık ve net bilgi vermesine dikkat ediniz. "Acil Yardım", "Lütfen Bakar mısınız" gibi konu içeriğiyle ilgili bilgi vermeyen başlıklar geç cevap almanıza neden olacağı gibi bilgiye ulaşmayı da zorlaştıracaktır.
- Sorularınızı ve cevaplarınızı, kısaca bildiklerinizi özel mesajla değil tüm forumla paylaşınız. Bildiklerinizi özel mesajla paylaşmak forum genelinde paylaşımda bulunan diğer üyelere haksızlık olduğu gibi forum kültürünün kolektif yapısına da aykırıdır.
- Sadece video veya blog bağlantısı verilerek açılan konuların can sıkıcı olduğunu ve üyeler tarafından hoş karşılanmadığını belirtelim. Lütfen paylaştığınız video veya blogun bağlantısının altına kısa da olsa konu başlığıyla alakalı bilgiler veriniz.

Hep birlikte keyifli forumlar dileriz.


GEZENBİLİR TV

Abone Olun

GEZENBİLİR'İ TAKİP EDİN

Forum istatistikleri

Konular
105,147
Mesajlar
1,533,982
Kayıtlı Üye Sayımız
167,036
Kaydolan Son Üyemiz
yavuz fidan

Çevrimiçi üyeler

Şu anda çevrimiçi üye yok.


Geri
Üst